Rif: 3vcov2025
FIRENZE
FIRENZE - zona Coverciano
Coverciano, pressi via Fontebuoni vendesi ottimo tre vani, 65 mq circa, posto al piano primo con ascensore, in palazzina signorile anni '50 in completa fase di ristrutturazione.
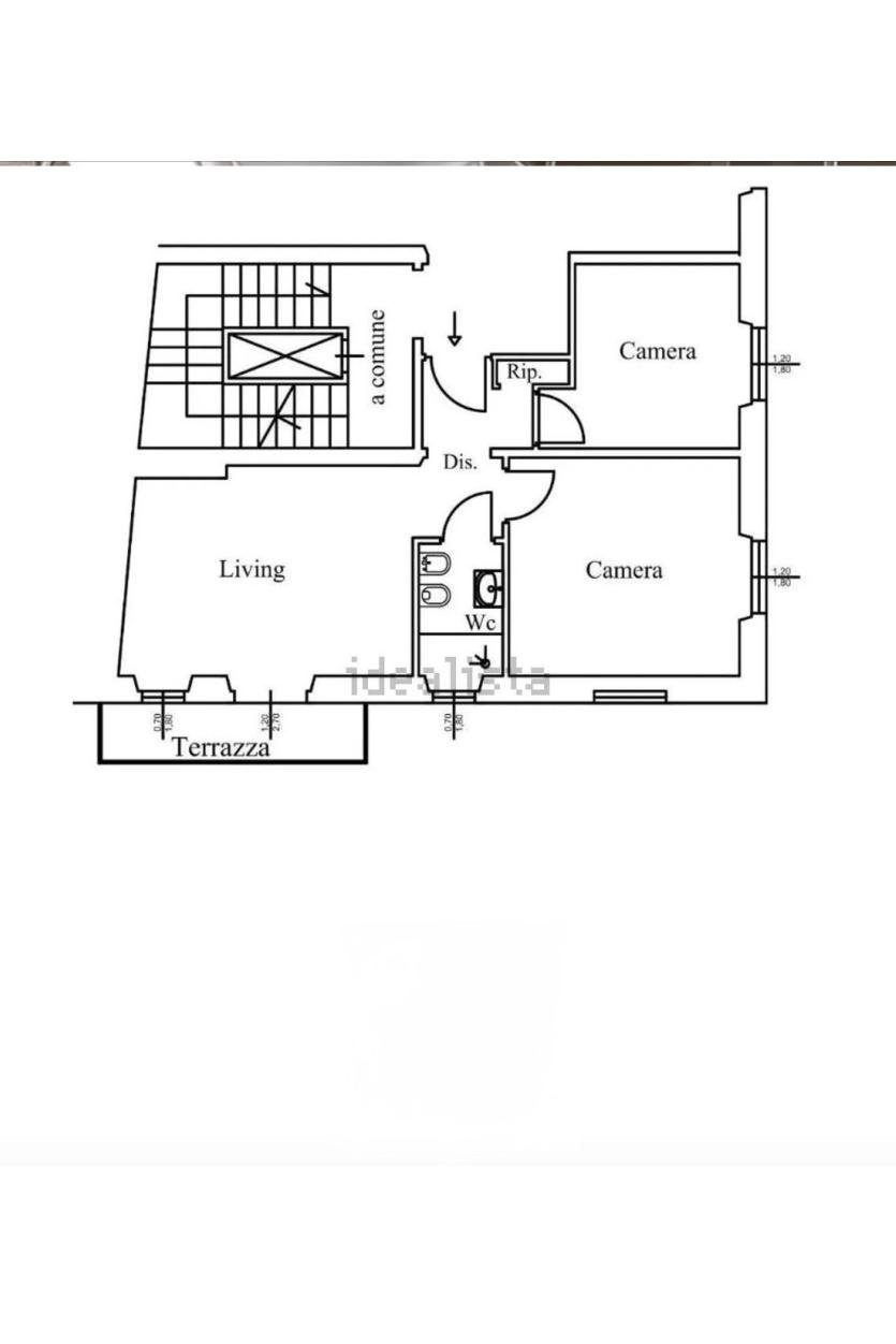
L'appartamento frutto di un frazionamento di una più ampia unità verrà così suddiviso: ingresso a comune, soggiorno con angolo cottura con accesso al balcone con affacci interni, due camere di cui una matrimoniale e una singola, servizio finestrato oltre ripostiglio.
Completa la proprietà una comoda cantina finestrata posta al piano seminterrato, con accesso dal vano condominiale. Impianti nuovi e a norma, termosingolo, predisposizione aria condizionata, infissi a taglio termico, ottime rifiniture di pregio. Consegna prevista per Aprile 2026. Ottima collocazione in zona residenziale e ben servita da mezzi pubblici e attività commerciali , ottimo anche come investimento ai fini locativi di qualsivoglia durata oppure come prima abitazione.
Alcune delle foto sono dei rendering inserite solo a scopo dimostrativo e non hanno nessun vincolo contrattuale, inoltre le spese condominiali sono presunte verranno poi calcolate a fine lavori dall'amministratore. VENDE SOCIETÀ
L'appartamento frutto di un frazionamento di una più ampia unità verrà così suddiviso: ingresso a comune, soggiorno con angolo cottura con accesso al balcone con affacci interni, due camere di cui una matrimoniale e una singola, servizio finestrato oltre ripostiglio.
Completa la proprietà una comoda cantina finestrata posta al piano seminterrato, con accesso dal vano condominiale. Impianti nuovi e a norma, termosingolo, predisposizione aria condizionata, infissi a taglio termico, ottime rifiniture di pregio. Consegna prevista per Aprile 2026. Ottima collocazione in zona residenziale e ben servita da mezzi pubblici e attività commerciali , ottimo anche come investimento ai fini locativi di qualsivoglia durata oppure come prima abitazione.
Alcune delle foto sono dei rendering inserite solo a scopo dimostrativo e non hanno nessun vincolo contrattuale, inoltre le spese condominiali sono presunte verranno poi calcolate a fine lavori dall'amministratore. VENDE SOCIETÀ
Consistenze
| Descrizione | Superficie | Sup. comm. |
|---|---|---|
| Principali | ||
| Immobile - 2° piano | 65 Mq | 65 Mqc |
| Cantina - piano interrato | 18 Mq | 4 Mqc |
| Balcone - 2° piano | 8 Mq | 2 Mqc |
| Totale | 71 Mqc | |
